
в избранное
с другими
Портал, изготовленный из високогатунковой стали, и передняя часть, устойчива к воздействию очень высоких температур.
Эффективное сгорание и дольше содержания температуры благодаря облицовке камеры сгорания TERMOTEC - теплонакопительное материалом, что повышает температуру в камере.
Высокий переход из камина в дымоход и размещены поперек водяные дефлекторы увеличивают поверхность теплообмена между топкой и окружающей средой. Понижение температуры дымовых газов приводит к увеличению мощности устройства.
Стабильные и выносливые к нагрузке дверцы камина изготовлены из закрытого профиля. Герметизация дверец расположена в профилированном канале, что гарантирует его надлежащую адгезию и предотвращает выпадение во время эксплуатации.
Сжигание частиц топлива благодаря дефлектору, который удлиняет дорогу вывода дымовых газов.
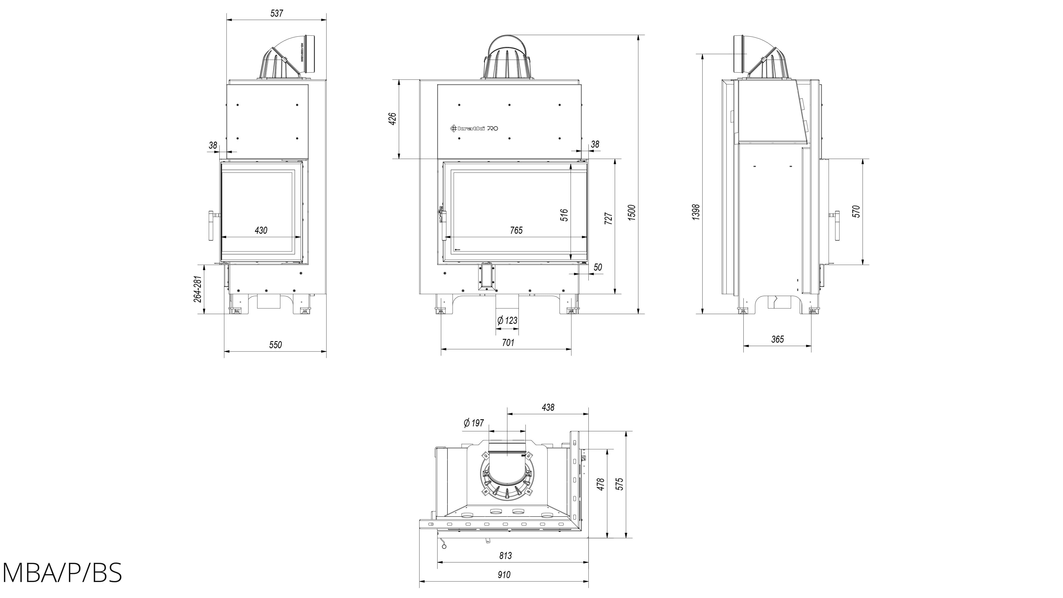
Подача воздуха происходит только извне с помощью встроенного подвода воздуха ø 125 мм. Регулирование подвода воздуха с помощью одного регулятора, что исключает ошибки при неправильном использовании.
Тройная система вентиляции камеры сгорания: первичный воздух - направляется на плитку, на которой происходит сгорание; вторичный воздух подается через отверстия в задней стенке. Также в топке применяется система чистого стекла (воздушная завеса).
Совершенная герметичность обеспечивается прочными сварными швами в закрытой камере сгорания.
Стальные элементы вырезаются лазером с помощью современного оборудования, а затем гнутся на машинах для сгибания CNC.
Передняя часть топки выложена жаростойкой керамикой, которая выдерживает температуру до 660 °C.
Устройство соответствует требованиям Екопроекта и стандарта BImSchV 2, определяя максимальные выбросы CO.
Безруштовая топка - дожигание на золе, что означает, что топливо сгорает до мелкого пепла, которого остается минимальное количество. Полученная таким образом тепловая энергия от древесины будет использована по максимуму. Нижняя плита топки значительно ниже относительно дверец.
Ограничение налипания копоти благодаря системе чистого стекла (дефлектор воздуха).
Специальная перфорированная конструкция ручки защищает от чрезмерного нагрева, влияет на высокий комфорт пользования камином.
Каминная топка с двумя стеклянными панелями, сопоставленными друг напротив друга под прямым углом (стеклянные панели соединены без рамы).
Декоративная стеклянная панель типа glass, которая выдерживает температуру до 660 °C и предоставляет камину современного и элегантного вида, оптически увеличивает переднюю часть топки.
Производитель | Kratki |
є Відновлення | Так |
Страна производитель | Польша |
Способ монтажа | Встроенный , Отдельностоящая |
Способ открывания стекла | Обычное |
Конфигурация камина | Угловая |
Основное топливо | Дрова |
Nom. Мощность, кВт | 17 , 17 |
Материал изделия | Сталь |
Способ отопления | Воздушное отопление |
Функции и оснащение камина | Дожиг пиролизных газов , Длительное горение , Для рекуперации , Изложения камеры , Шамотная футеровка |
Дизайн | Современный |
Сторона открытия | Правое |
Диаметр дымохода, мм | Ø 200 мм |
Max. Длина полена, мм | 500 |
Соответствие стандарту BImSchV 2 | Да |
Ориентация | Широкоформатная |
Соответствие Экопроекту | Да |
Форма стекла | Прямое боковое |
Диапазон мощности, кВт | 8.0 - 21.0 |
Топливо агрегата | Лиственные с содержанием влаги ≤20% |
КПД, % | 80 |
Эмиссия CO пыли, мг/Нм3 | 35 |
Индекс энергоэффективности EEI | 105.4 |
Эмиссия CO при 13% O 2 ≤ % | 0.09 |
Max. t Дымовых газов, °C | 250 |
Высота, мм | 1500 |
Ширина, мм | 905 |
Глубина, мм | 537 |
Вес, кг | 238 |
Модель | MBA |
Подчиненное ТП (выдодится в католге по фильтру) | Да |