
в избранное
с другими
Каминная кассета Arke является разновидностью закрытой камеры сгорания, монтированной на существующие уже открыты камеры сгорания или в индивидуальную застройку. Ее простой и элегантный вид идут в паре с очень хорошими тепловыми параметрами. Она имеет систему чистого стекла, которая вместе с отдельным контейнером и накопленной в нем золой помогает держать устройство в чистоте.
Эффективное сгорания и дольше хранения температуры происходит благодаря облицовке камеры сгорания TERMOTEC - теплонакопительным материалом, который повышает температуру очага.
Сжигание частиц топлива благодаря дефлектору, который продлевает время прохождения дымовых газов. Этот процесс также увеличивает эффективность сгорания и гарантирует лучший расход энергии, и таким образом минимизирует выброс вредных веществ в атмосферу.
Кассета оборудована турбинами, которые находятся под камерой сгорания. Устройство имеет трёхступенчатое регулирование работы вентиляторов. В зависимости от выбора одного из них:
позиция 0 - турбины включаются автоматически и работают с уменьшенной скоростью после достижения датчиком температуры 50 ° C. (Датчик ниже контейнера в передней части устройства)
позиция 1 - турбины действуют в длительный способ с полной скоростью независимо от работы кассеты,
позиция 2 - турбины действуют в длительный способ с полной скоростью независимо от работы кассеты.
Турбины отвечают за стимуляцию потока воздуха, благодаря чему тепло эффективно отдается окружению.
Регулирование воздуха, так называемая, воздушная завеса происходит с помощью механизма, встроенного над дверцей печи. Открытие механизма позволяет подводить воздух в топку, в верхнюю ее часть, где наступает дожигание газов, возникших в процессе сжигания древесины, ограничивает выброс вредного СО в атмосферу. Воздух, направленный в дефлектор, обметает стекло, оберегая его от огня и дыма, что очень ограничивает налипание на нем копоти, и поэтому стекло остается чистым.
Также в топку можно доставить воздух извне, монтируя подвод холодного воздуха. С этой целью следует докупить подвод воздуха и специально приспособленный для этого контейнер для золы. Возможность подключения подвода касается только топок, изготовленных после 1 мая 2018 года.
Передняя часть топки выложена жаростойкой керамикой, которая выдерживает температуру до 660 °C. Предлагаемое нами стекло имеет сертификат качества и безопасности.
Корпус и передняя часть устойчивые к воздействию высоких температур благодаря применению високогатунковой стали.
Совершенная герметичность обеспечивается прочными сварными швами в закрытой камере сгорания. Стальные элементы вырезаются лазером с помощью современного оборудования, а затем гнутся на машинах для сгибания CNC.
Сохранение топки в чистоте становится легче благодаря встроенному рушту и контейнеру, в котором накапливается зола.
Дополнительно ограниченое налипание копоти наступает благодаря применённой системе чистого стекла. Воздушная завеса отгораживает стекло от камеры сгорания. Благодаря этому оно не загрязняется.
Она оборудована одиночной декоративной стеклянной панелью типа glass, благодаря чему и выглядит элегантно и современно. Применение такого решения оптически увеличивает переднюю часть топки и подчеркивает созерцание огня.
Дверцы топки оборудованы удобной ручкой.
Устройство соответствует требованиям Екопроекта и стандарта BImSchV 2, определяя максимальные выбросы CO.
Производитель | Kratki |
є Відновлення | Так |
Страна производитель | Польша |
Способ монтажа | Встроенный , Отдельностоящая |
Способ открывания стекла | Обычное |
Конфигурация камина | С одним фасадом |
Основное топливо | Дрова |
Nom. Мощность, кВт | 8 , 8 |
Материал изделия | Сталь |
Способ отопления | Воздушное отопление |
Дизайн | Современный |
Сторона открытия | Левое |
Диаметр дымохода, мм | Ø 150 мм |
Функции и оснащение камина | Длительное горение , Зольник , Изложения камеры , Шамотная футеровка , Кассетные |
Форма стекла | Прямое |
Соответствие стандарту BImSchV 2 | Да |
Ориентация | Классическая |
Соответствие Экопроекту | Да |
Топливо агрегата | Лиственные с содержанием влаги ≤20% |
Max. Длина полена, мм | 300 |
Диапазон мощности, кВт | 4.0 - 11.0 |
Эмиссия CO при 13% O 2 ≤ % | 0.1 |
Эмиссия CO пыли, мг/Нм3 | 15 |
КПД, % | 83 |
Индекс энергоэффективности EEI | 109.32 |
Max. t Дымовых газов, °C | 171 |
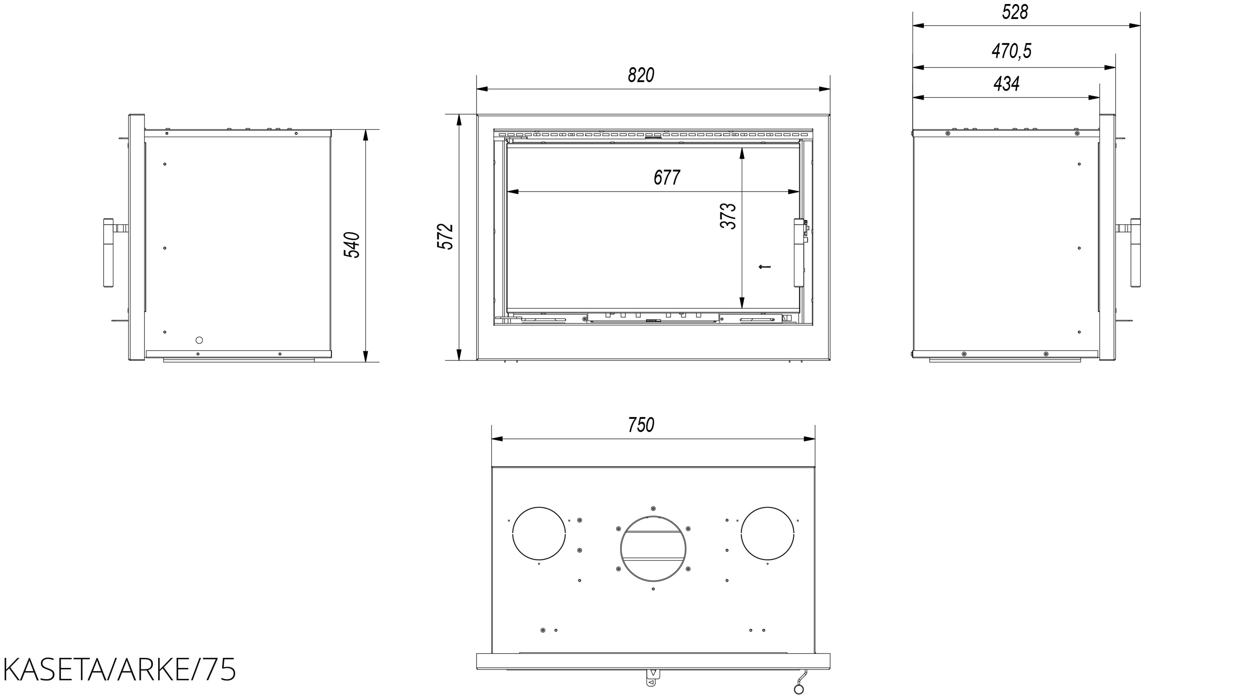
Высота, мм | 572 |
Ширина, мм | 820 |
Глубина, мм | 470 |
Вес, кг | 115 |
Модель | Arke |