
в избранное
с другими
Корпус и передняя стенка топки выдерживают воздействие высоких температур благодаря используемому материалу - высококачественной стали.
Специальная система водяного контура позволяет получить из дымовых газов и передать в нагревательную систему большое количество тепла, благодаря чему можно получить высокую энергетическую мощность топки.
Встроенный змеевик. Корпус водяного контура обеспечен штифтами. Входной/выходной разъем 1/2.
Эффективное сгорание и дольше содержания температуры благодаря облицовке камеры сгорания TERMOTEC - теплонакопительное материалом, что повышает температуру в камере.
Система двух дефлекторов, которые удлиняют время прохождения дымовых газов, сгорание является очень экологичным.
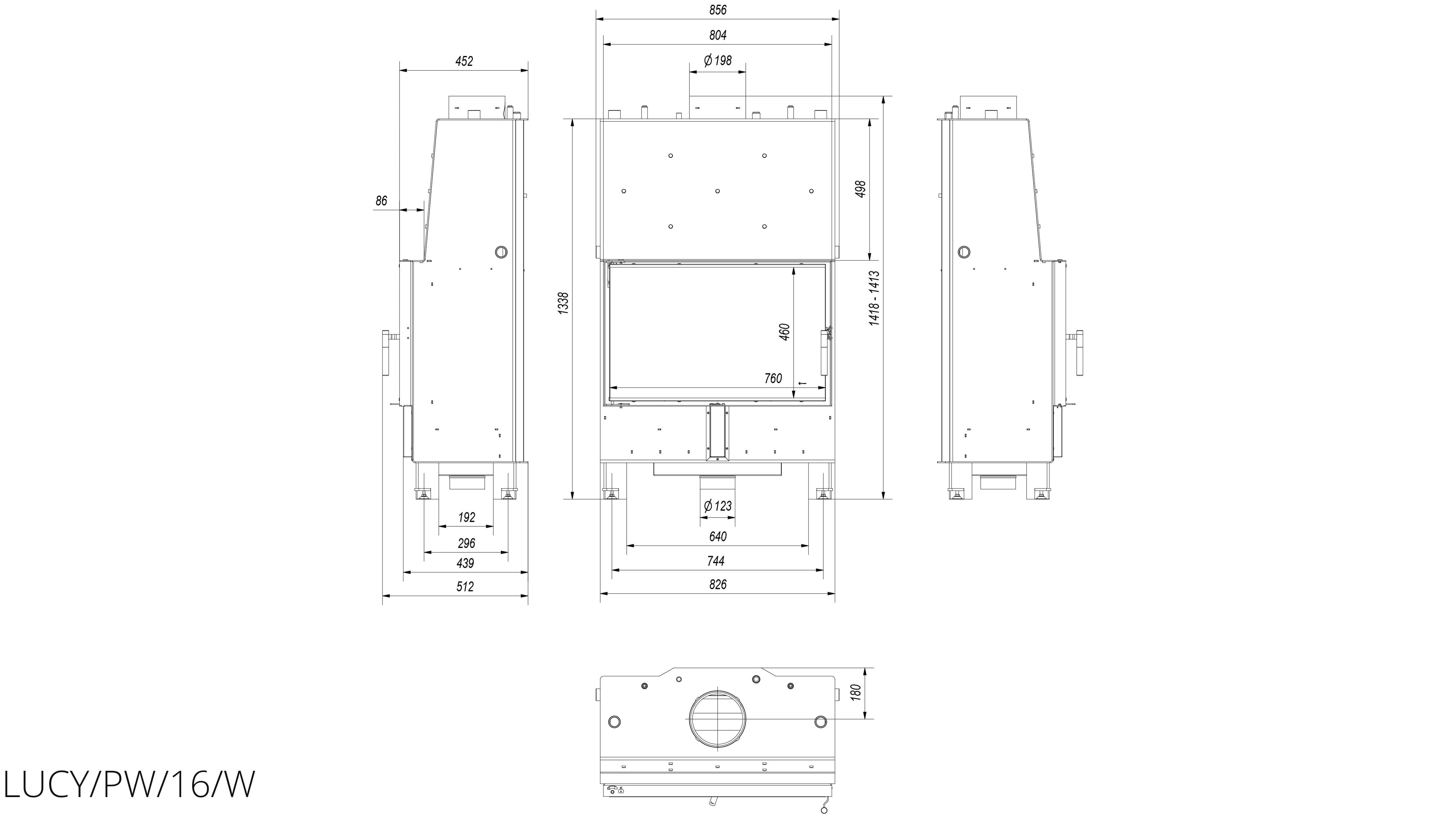
Подача воздуха происходит только извне с помощью встроенного подвода воздуха ø 125 мм. Регулирование подвода воздуха с помощью одного регулятора, что исключает ошибки при неправильном использовании.
Тройная система вентиляции камеры сгорания: первичный воздух - подается под рушт; вторичный воздух подается через отверстия в задней стенке. Также в топке применяется система чистого стекла (воздушная завеса).
Совершенная герметичность обеспечивается прочными сварными швами в закрытой камере сгорания.
Стальные элементы вырезаются лазером с помощью современного оборудования, а затем гнутся на машинах для сгибания CNC.
Передняя часть топки выложена жаростойкой керамикой, которая выдерживает температуру до 660 °C.
Съемная решётка и контейнер для золы позволяют легко сохранять топку в чистоте.
Специальная перфорированная конструкция ручки защищает от чрезмерного нагрева, влияет на высокий комфорт пользования камином.
Ограничение налипания копоти благодаря системе чистого стекла (дефлектор воздуха).
Можно применять при различных монтажных условиях благодаря регулируемым ножкам и подвижному дымоходному отверстию с регулировкой установки 360°.
Декоративная стеклянная панель типа glass, которая выдерживает температуру до 660 °C и предоставляет камину современного и элегантного вида, оптически увеличивает переднюю часть топки.
Элегантная и удобная ручка.
Производитель | Kratki |
є Відновлення | Так |
Страна производитель | Польша |
Способ монтажа | Встроенный , Отдельностоящая |
Способ открывания стекла | Обычное |
Конфигурация камина | С одним фасадом |
Основное топливо | Дрова |
Nom. Мощность, кВт | 16 , 16 |
Материал изделия | Сталь |
Объем воды в котле, л | 39 |
Max. Рабочее давление, бар | 2 |
Способ отопления | Водяной контур |
Функции и оснащение камина | Дожиг пиролизных газов , Длительное горение , Для рекуперации , Водяной контур , Зольник , Изложения камеры , С шибером , Шамотная футеровка |
Дизайн | Современный |
Сторона открытия | Левое |
Диаметр дымохода, мм | Ø 200 мм |
Max. Длина полена, мм | 500 |
Топливо агрегата | Лиственные дрова влажность ≤20% |
Форма стекла | Прямое |
Соответствие стандарту BImSchV 2 | Да |
Ориентация | Классическая |
Соответствие Экопроекту | Да |
Диапазон мощности, кВт | 7.0 - 19.0 |
Эмиссия CO при 13% O 2 ≤ % | 0.09 |
КПД, % | 84 |
Индекс энергоэффективности EEI | 110.62 |
Max. t Дымовых газов, °C | 200 |
Эмиссия CO пыли, мг/Нм3 | 25 |
Высота, мм | 1384 |
Ширина, мм | 856 |
Глубина, мм | 407 |
Вес, кг | 257 |
Модель | Lucy |
Гарантия, лет | 6875 |