
в избранное
с другими
Небольшая топка NBC, застеклённая с трёх сторон, сочетает в себе уникальную эстетику и исключительные функциональные свойства. Вне визуальных качеств, устройство гарантирует исправное отопления помещений и экологическое сжигание древесины. Благодаря использованию современных материалов и инновационных технических решений характеризуется очень хорошими техническими параметрами. Одним из многих его преимуществ является возможность подключения подвода внешнего воздуха. Элегантности топке добавляет декоративная стеклянная панель типа glass. Более того, имеет систему родительского контроля, что предохраняет от нежелательного открывания дверец сверху.
Топка гарантирует безопасность в использовании, поскольку имеет систему родительского контроля, что предохраняет от нежелательного открывания дверец сверху.
Передняя часть топки выложена жаростойкой керамикой, которая выдерживает температуру до 660 °C. Вмонтированное стекло имеет сертификат качества и безопасности.
Корпус и передняя стенка выдерживают воздействие высоких температур благодаря используемому материалу - высококачественной стали.
Рамка дверец изготовлена из закрытого профиля, делает ее надёжной и устойчивой к нагрузкам, которые возникают во время работы при высоких температурах. Совершенная герметичность топки обеспечивается прочными сварными швами в закрытой камере сгорания. Стальные элементы вырезаются лазером с помощью современного оборудования, а затем гнутся на машинах для сгибания CNC.
Устройство соответствует требованиям Екопроекта и стандарта BImSchV 2, определяя максимальные выбросы CO.
NBC привлекает внимание современным дизайном и эстетическим окончанием. Захватывает гармоничным созерцанием огня, предоставляя интерьеру неповторимый стиль. Тепло излучается не только спереди, но и также по бокам.
Камин оборудован единичной декоративной стеклянной панелью типа glass, благодаря которой выглядит элегантно и современно. Применение такого решения оптически увеличивает переднюю часть топки и подчеркивает созерцание огня.
Дверца топки имеет удобные рельки, облегчающие открывание дверец сверху.
Дверцы топки работают в системе lift up - стеклянная панель поднимается вверх. Эта система была построена, опираясь на противовес - два блока со стальной рейкой работают в направляющих на целых 4 (по 2 на каждую сторону) несущих роликах, благодаря чему вес двери равномерно распределяется. Они движутся вдоль по раздвижных направляющих, установленных в дверной раме, что гарантирует лёгкую, тихую и бесперебойную работу. Благодаря дверцам, что поднимаются и опускаются, за один раз можно загрузить большое количество древесины. Дополнительный механизм, который позволяет двустороннее-боковое открывание стеклянных панелей, что облегчит его чистку.
Пристрій додатково обладнаний системою чистого скла - завдяки воздушной завесе струю воздуха распределяется равномерно, обметает стекло и ограничивает до минимума налипание на нём копоти. Это позволяет сохранить эффектный и чистый вид стекла в течение долгого времени.
В камине применяется специально профилированная нижняя плита, изготовленная из TERMOTEC, благодаря чему камера сгорания является глубже и включает в себя больше древесины, а полена не летят на стекло.
Сохранение топки в чистоте становится легче благодаря встроенному рушту и контейнеру, в котором накапливается зола.
Эффективное сгорания и дольше хранения температуры происходит благодаря облицовке камеры сгорания TERMOTEC - теплонакопительным материалом, который повышает температуру очага. А еще ее гладкая, белая поверхность эффективная внутри камина.
Дожигание частиц топлива благодаря дефлектору, который удлиняет вывод дымовых газов. Этот процесс также увеличивает эффективность сгорания и гарантирует лучший расход энергии, и таким образом минимизирует выброс вредных веществ в атмосферу.
Устройство имеет тройную систему аэрации в камере сгорания, благодаря которой сжигание древесины в топке является экологическим, а, главное, экономным.
Первичный воздух подается в топку извне благодаря встроенному подводу воздуха ø 125 мм. Подвод воздуха находится в полу топки. Его регулирование происходит с помощью дроссельной заслонки, которая находится внизу дверец, что не допускает ошибок в неправильном пользовании. Целый механизм действует очень тихо и бесперебойно.
Модель NBC соответствует нормам Экопроекта и требованиям реструктуризационной нормы BImSchV 2, которая определяет максимальный выброс СО.
Производитель | Kratki |
є Відновлення | Так |
Страна производитель | Польша |
Способ монтажа | Встроенный , Отдельностоящая |
Способ открывания стекла | Гильотина |
Конфигурация камина | Трехсторонняя |
Основное топливо | Дрова |
Nom. Мощность, кВт | 7 , 7 |
Материал изделия | Сталь |
Способ отопления | Воздушное отопление |
Функции и оснащение камина | Дожиг пиролизных газов , Длительное горение , Для рекуперации , Зольник , Изложения камеры , Шамотная футеровка |
Дизайн | Современный |
Диаметр дымохода, мм | Ø 160 мм |
Max. Длина полена, мм | 400 |
Соответствие стандарту BImSchV 2 | Да |
Диапазон мощности, кВт | 3.0 - 9.0 |
Ориентация | Классическая |
Соответствие Экопроекту | Да |
Сторона открытия | Вверх |
Форма стекла | Прямое боковое |
Топливо агрегата | Лиственные с содержанием влаги ≤20% |
Эмиссия CO при 13% O 2 ≤ % | 0.1 |
КПД, % | 83 |
Max. t Дымовых газов, °C | 199 |
Эмиссия CO пыли, мг/Нм3 | 29 |
Индекс энергоэффективности EEI | 111.4 |
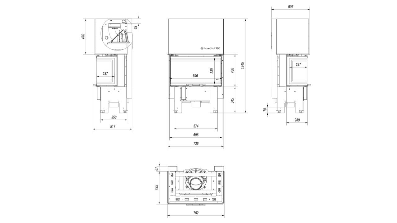
Высота, мм | 1245 |
Ширина, мм | 752 |
Глубина, мм | 502 |
Вес, кг | 188 |
Модель | NBC |