
в избранное
с другими
Портал, изготовленный из високогатунковой стали, и передняя часть, устойчива к воздействию очень высоких температур.
Эффективное сгорание и дольше содержания температуры благодаря облицовке камеры сгорания TERMOTEC - теплонакопительное материалом, что повышает температуру в камере.
Высокий переход из камина в дымоход и размещены поперек водяные дефлекторы увеличивают поверхность теплообмена между топкой и окружающей средой. Понижение температуры дымовых газов приводит к увеличению мощности устройства.
Стабильные и выносливые к нагрузке дверцы камина изготовлены из закрытого профиля. Герметизация дверец расположена в профилированном канале, что гарантирует его надлежащую адгезию и предотвращает выпадение во время эксплуатации.
Сжигание частиц топлива благодаря дефлектору, который удлиняет дорогу вывода дымовых газов.
Подача воздуха происходит только извне с помощью встроенного подвода воздуха ø 125 мм. Регулирование подвода воздуха с помощью одного регулятора, что исключает ошибки при неправильном использовании.
Тройная система вентиляции камеры сгорания: первичный воздух - направляется на плитку, на которой происходит сгорание; вторичный воздух подается через отверстия в задней стенке. Также в топке применяется система чистого стекла (воздушная завеса).
Совершенная герметичность обеспечивается прочными сварными швами в закрытой камере сгорания.
Стальные элементы вырезаются лазером с помощью современного оборудования, а затем гнутся на машинах для сгибания CNC.
Передняя часть топки выложена жаростойкой керамикой, которая выдерживает температуру до 660 °C.
Устройство соответствует требованиям Екопроекта и стандарта BImSchV 2, определяя максимальные выбросы CO.
Безруштовая топка - дожигание на золе, что означает, что топливо сгорает до мелкого пепла, которого остается минимальное количество. Полученная таким образом тепловая энергия от древесины будет использована по максимуму.
Нижняя плита топки значительно занижена относительно дверец.
Дверцы топки работают в системе lift up - стеклянная панель поднимается вверх. Эта система была построена, опираясь в противовес - два блока (по обоим сторонам двери) со стальной рейкой работают в направляющих на двух несущих роликах, благодаря чему вес двери равномерно распределяется. Они движутся вдоль на огнеупорных роликах, установленных в дверной раме, что гарантирует их лёгкое, тихое и бесперебойное функционирование. Движение дверец происходит на расстоянии пару миллиметров от корпуса, что предотвращает повреждение герметизации. Дверцы, которые закрываются, с большой силой погружаются в дверную раму, благодаря чему камера сгорания есть полностью герметичной.
Благодаря дверцам, что поднимаются и опускаются, вы можете одновременно загружать нужное количество древесины. Дополнительный механизм, который позволяет боковое открывание стеклянных панелей, что облегчает очистку и поддержание чистоты камеры сгорания.
Ограничение налипания копоти благодаря системе чистого стекла (дефлектор воздуха).
Декоративная стеклянная панель типа glass, которая выдерживает температуру до 660 °C и предоставляет камину современного и элегантного вида, оптически увеличивает переднюю часть топки.
Производитель | Kratki |
є Відновлення | Так |
Страна производитель | Польша |
Способ монтажа | Встроенный , Отдельностоящая |
Способ открывания стекла | Гильотина |
Конфигурация камина | С одним фасадом |
Основное топливо | Дрова |
Nom. Мощность, кВт | 13 , 13 |
Материал изделия | Сталь |
Способ отопления | Воздушное отопление |
Функции и оснащение камина | Дожиг пиролизных газов , Длительное горение , Для рекуперации , Двойное стекло , Изложения камеры , Шамотная футеровка |
Дизайн | Современный |
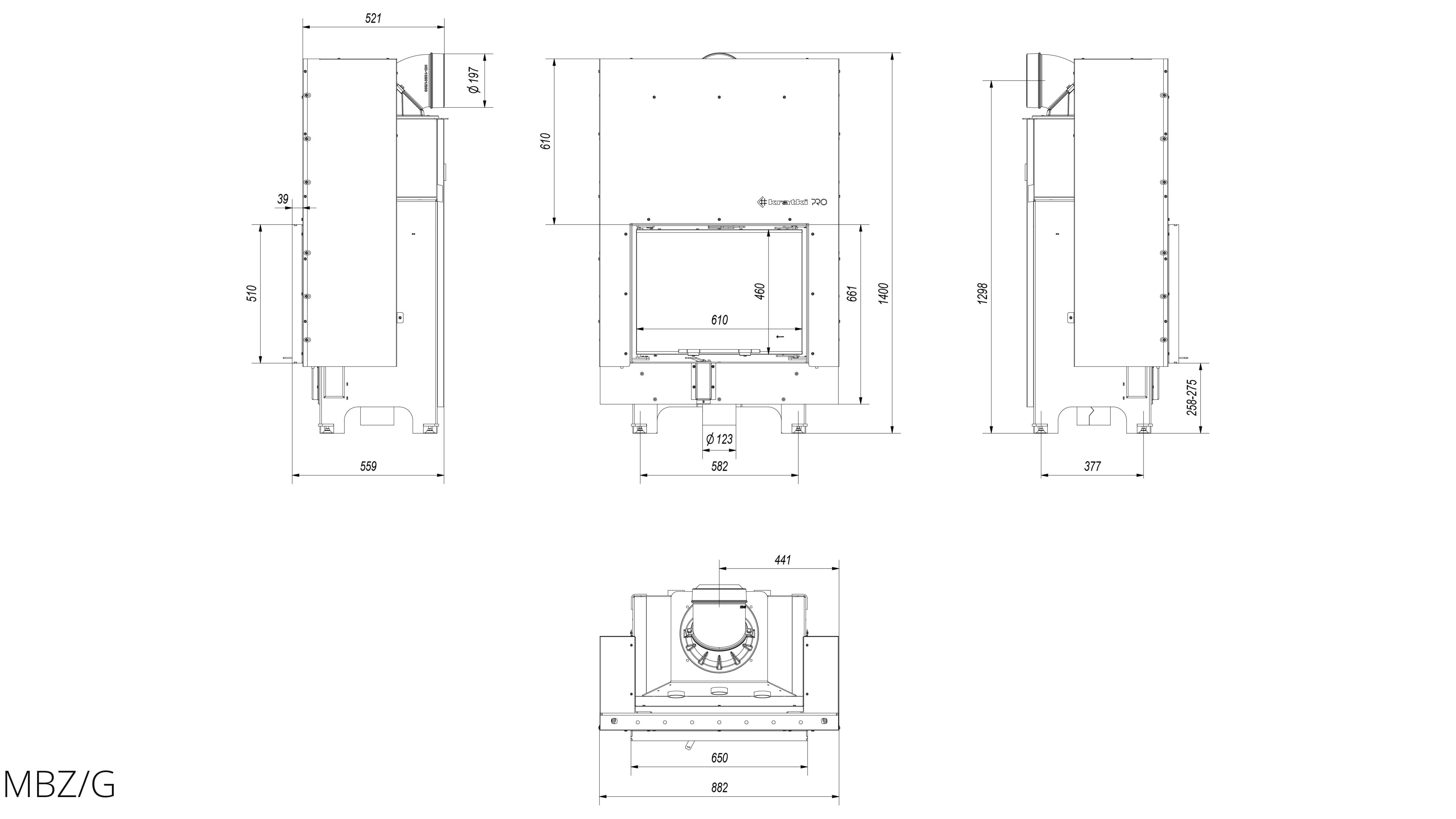
Диаметр дымохода, мм | Ø 200 мм |
Max. Длина полена, мм | 500 |
Форма стекла | Прямое |
Соответствие стандарту BImSchV 2 | Да |
Диапазон мощности, кВт | 6.0 - 16.0 |
Ориентация | Классическая |
Соответствие Экопроекту | Да |
Сторона открытия | Вверх |
Топливо агрегата | Лиственные с содержанием влаги ≤20% |
КПД, % | 81 |
Эмиссия CO при 13% O 2 ≤ % | 0.09 |
Max. t Дымовых газов, °C | 235 |
Эмиссия CO пыли, мг/Нм3 | 27 |
Индекс энергоэффективности EEI | 106.71 |
Высота, мм | 1400 |
Ширина, мм | 831 |
Глубина, мм | 532 |
Вес, кг | 283 |
Модель | MBZ |